wf columns gabion columns wf beams hss columns wf columns wf columns wf roof beams wf columns wf columns

The whole difference between construction and creation is exactly this. That a thing constructed can only be loved after it is constructed-but a thing created is loved before it exists. ~ Charles Dickens

STRUCTURAL STEEL PLANNING

Planning the structural steel installation is critical with the limited site area and because the structural steel is exposed in the finished building.

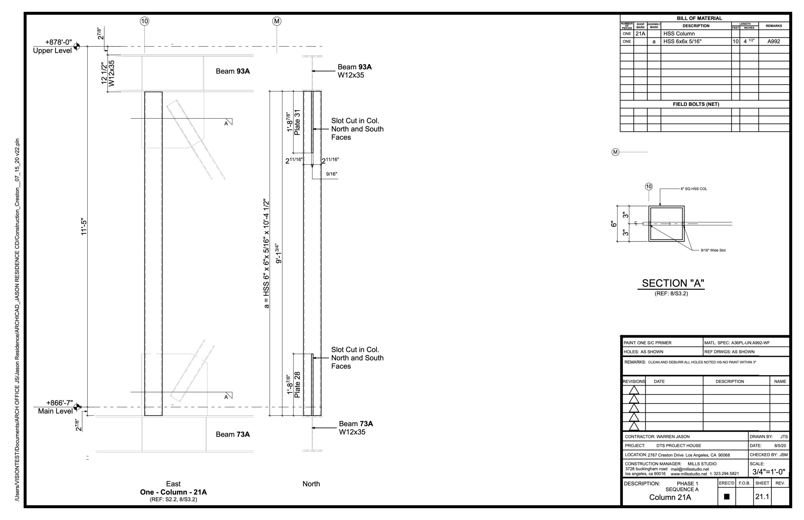
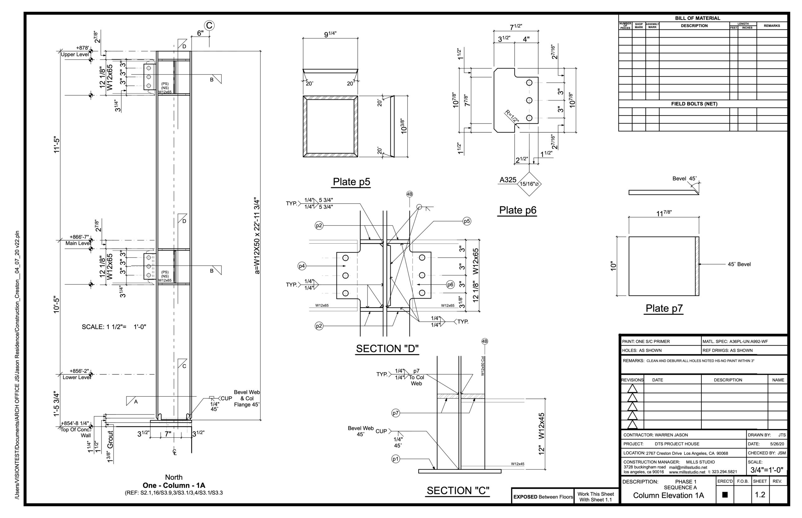
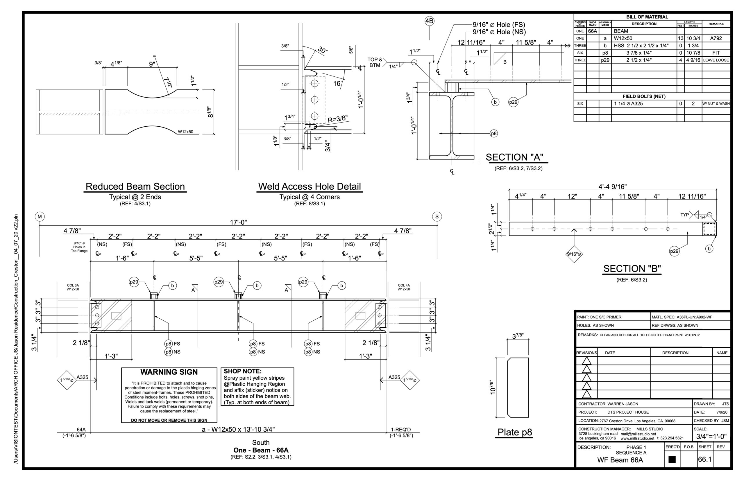
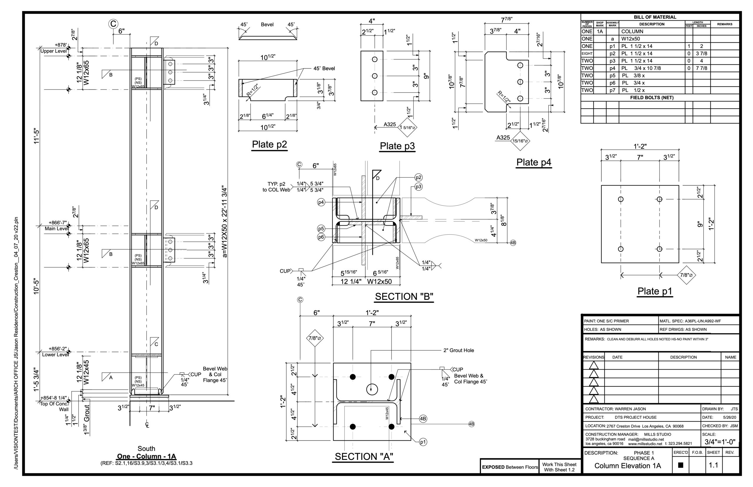
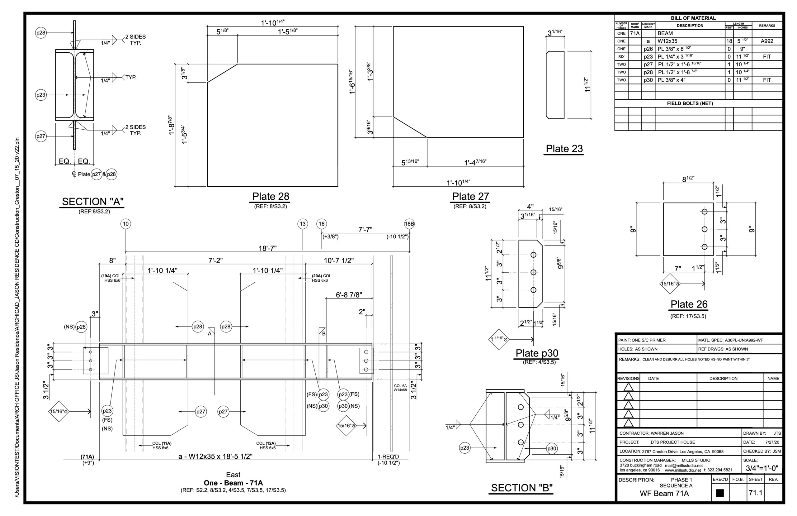
STRUCTURAL STEEL SHOP DRAWINGS

mills studio prepared the Shop Drawings necessary for the fabrication and installation of the structural steel.

If a building looks better under construction than it does when finished, then its a failure. ~ Doug Coupland