Working drawings are like anatomical drawings. They reveal something of the secret inner tension that the finished architectural body is reluctant to divulge: the art of joining, hidden geometry, the friction of materials, the inner forces of bearing and holding, the human work which is inherent in man-made things.
~ Peter Zumthor
CONTRACT DOCUMENTS
Complete and integrated Contract Documents are critical to the execution of the design and construction of the DTS Project House. It is critical to expose every construction condition to scrutiny in the documentation process as almost every trace of the construction process is exposed in the finished building. It is also critical that all building systems be considered, integrated, and documented as in a building with an open plan and exposed structure there is no place to conceal unplanned infrastructure.
A disciplined process of documentation exposes both the visible and hidden relationships among the building’s various elements, components, and materials so that these relationships are fully planned and intentional, and not accidental. Properly planned construction resolutions reinforce the architectural agenda while unresolved accidents tend to distract from the clarity of the expression. Although extensive and thorough documentation provides for most construction resolutions, the documentation cannot anticipate every physical construction condition. But a sufficiently systematized approach to detailing and documentation can make it more likely that “accidents” fall within parameters that allow for acceptable resolutions.
It is an apparent contradiction that Contract Documents must fully resolve what is to be built and how it is to be built at critical points in the project process, such as when submitting for permits, but the Contract Documents must not become static. Contract Documents must be revised to reflect material and industry innovations happening in real time and the input of additional sources, such as artisans, that are introduced at different points in the project process. Contract Documents should sufficiently confirm and expose the conceptual and physical relationships of elements so that when we revise one element we are aware of how the revision conceptually and physically affects other elements. The physical relationship of the various elements in the finished building are a direct result of how we resolve and document these relationships in the Contract Documents.
In today’s construction environment, significant architecture requires both a clear architectural agenda and Contract Documents sufficiently clear to show how that agenda will be made tangible. The Contract Documents do not need to explain why but how the building is to be built. The architect’s agenda and intentions are totally dependent on the Contract Documents to make them real and thus meaningful. A finished building will never accidentally reflect an intentional architectural agenda. The purpose of Contract Documents is to make what is built intentional and not accidental. Contract Documents make it possible for third parties who are unaware of the designer’s motives and intent to construct and then evaluate those intentions and motives.
An architectural agenda is generated from intangibles such as a world view, an understanding of human nature, and wisdom. The Contract Documents transform these insights into a physical building. An architectural agenda cannot be willed into existence, the production of Contract Documents is all about the will to do so. It is interesting that it is often the case that clients of architecture see the Architect as either designer or as a maker of blueprints – the conceptual and the practical as two poles. It is the responsibility of the Architect to unite these two poles and make clients see that significant architecture cannot be achieved without equally quality design and quality blueprints. The architect and client must both understand that the design and the design documentation are meaningless without the other.
You can use an eraser on the drafting table or a sledge hammer on the construction site.
~ Frank Lloyd Wright
The DTS Project House Contract Documents serve the following purposes:
Design Development
Design intent is about why we are doing something, but design intent is meaningless until implemented. The process of producing the Contract Documents necessarily makes the design intent real and forces us to determine how the design intent is implemented. Design intent is about motives and why we are doing something, but once “why” is committed to Contract Documents only “what” and “how” are relevant. “What” and “how” will exclusively determine the evaluation of the finished building.Integrate the Intent of the Various Disciplines
The various design disciplines have competing interests and often vie for the same physical space. The process of producing the Contract Documents forces resolution of these competing interests. Although somewhat counterintuitive, often pulling apart and isolating the work of the various disciplines in the Contract Documents provides the clarity necessary for construction and thus the most integrated and resolved finished building.Permits
Contract Documents are necessary for submissions required by governmental agencies and show compliance with relevant codes and ordinances. The more clearly and concisely compliance is shown the more efficient the permit process. The formatting of documentation also affects the ability of governmental agencies to efficiently conduct inspections and provide inspection approvals.Bidding
Contract Documents sufficiently define a specific scope of work so that accurate and useful bidding is possible. Contract Documents eliminate the need for third parties to make assumptions about what is to be built and how it is to be built.Contracts
Contract Documents are the basis for documenting the legal responsibilities of each subcontractor and are the basis for making each sub-contractor accountable.Construction
Contract Documents show what is to be built and how it is to be built. A lack of clarity as to what and how will necessarily lead to a lack of clear architectural intent. Clarity never happens by accident.
I prefer drawing to talking. Drawing is faster, and leaves less room for lies.
~ Le Corbusier
The DTS Project House Contract Documents consist of the following:
Architectural
A0 Notes and SchedulesA1 Site
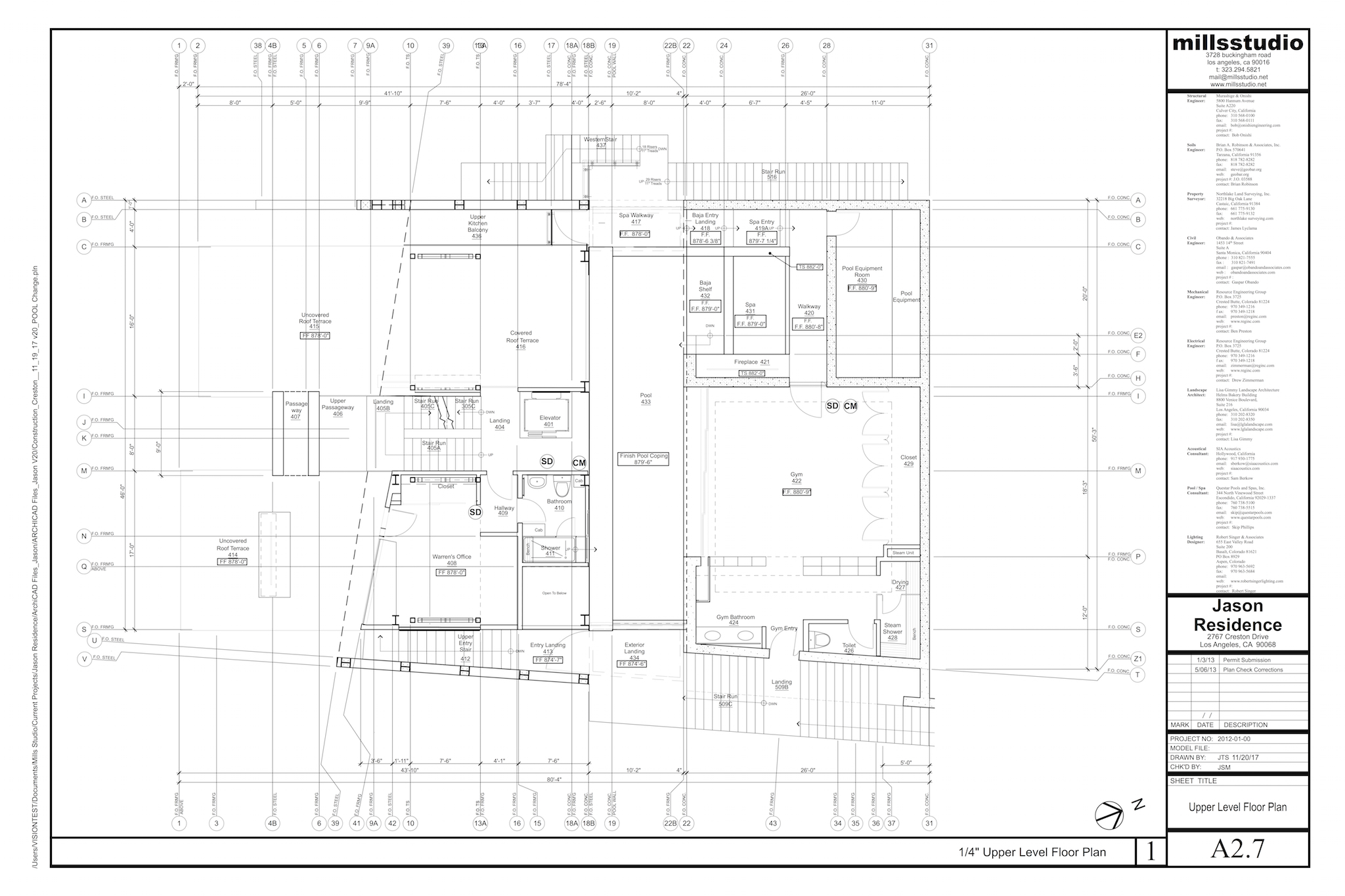
A2 Plans
A3 Exterior Elevations
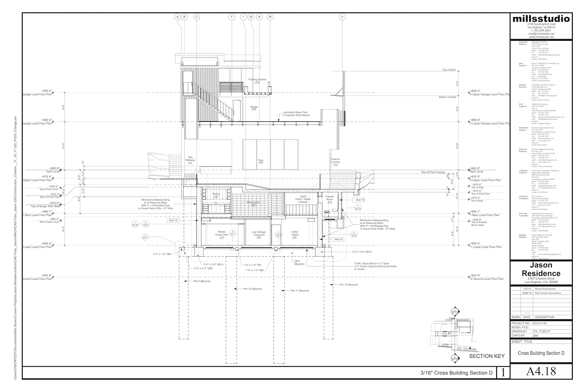
A4 Building Sections
A5 Wall Sections
A6 Enlarged Plans / Interior Elevations
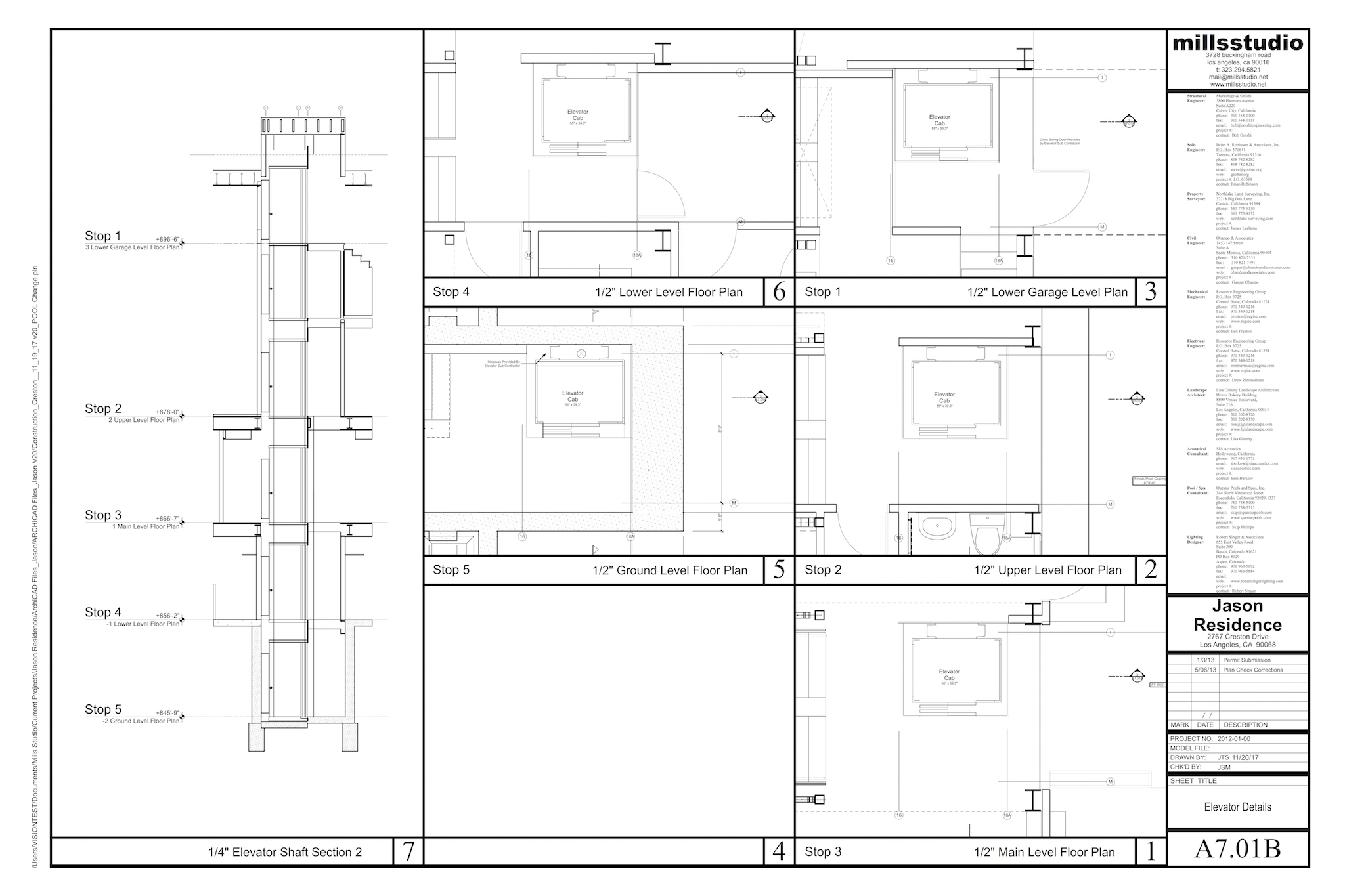
A7 Stairs / Elevator
A8 Fireplaces
A9 Doors and Windows
A10 Construction Details
Interiors
ID0 Notes and SchedulesID2 Furniture Plans
ID3 Rugs
Landscape
LS1 Landscape NotesLS2 Hardscape Plans
LS3 Landscape Plans / Details
LS4 Hardscape Details
LS5 Irrigation Plans / Details
Civil
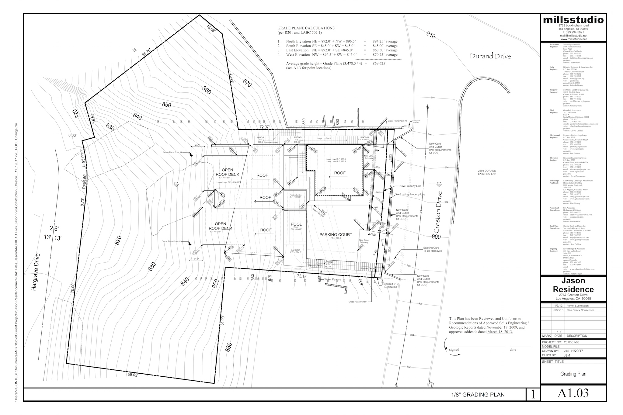
C1 GradingS Street Plans
Lighting
L2 Lighting PlansL2L Lamping Plans
L3 Lighting Details
Low Voltage
ELV1 Low Voltage NotesELV2 Low Voltage Plans
ELV3 Wire Bundles and Device Elevations / Plates
ELV4 Block Diagrams
Structural
S1 Structural NotesS2 Structural Plans
S3 Structural Details
Mechanical
M1 Mechanical NotesM2 Mechanical Plans
M3 Mechanical Schedules and Details
M4 Ductwork 3D
Plumbing
P1 Plumbing Notes and SchedulesP2 Plumbing Plans
Electrical
E1 Electrical Notes and SchedulesE2 Electrical Power Plans
E3 Electrical Lighting Plans
Fire Sprinkler
Pool & Spa
PS1 Pool & Spa NotesPS2 Pool & Spa Piping Plans
PD Pool & Spa Equipment
In addition to the Contract Documents mills studio prepared Shop Drawings including the following:
Concrete Formwork
FW FormworkCT Concrete Ties
Concrete Rebar
SD P PilesSD GB Grade Beams
SD TB Tie Beams
SD W Walls
SD S Slabs
Wood Framing
WF2 Wood Framing Installation PlansMetal Stud Framing
MS 2 Metal Stud Installation PlansMS 6 Metal Stud Installation Elevations
The following Shop Drawings were prepared by Subcontractors:
Stainless Steel Pool & Spa Shop Drawings
Elevator Shop Drawings
Door and Window Shop Drawings
Vehicle Turntable Shop Drawings
The details of a building cannot be alive when they are specified in the form of working drawings, because these drawings always assume, for the sake of simplicity, that the various manifestations of a given part are identical…The person who draws a working drawing cannot draw each window, or each brick, differently, because he has no basis for knowing the subtle differences which will be required. These only become clear when the actual building process is already underway. So he draws them the same, because he has no reason, sitting at the drawing board, to make them different. But the builder builds according to a detailed drawing, and is constrained by his contract to make the building exactly like the drawing–and in the actual building this becomes dead and artificial.
~ Christopher Alexander











